咨询电话:400-993-0680
您的位置: 首页 > 新房 > 怀德城德懿府-德望府

怀德城德懿府-德望府

在售 低密居住

售楼处电话

400-993-0680

户型图(1/1

查看大图

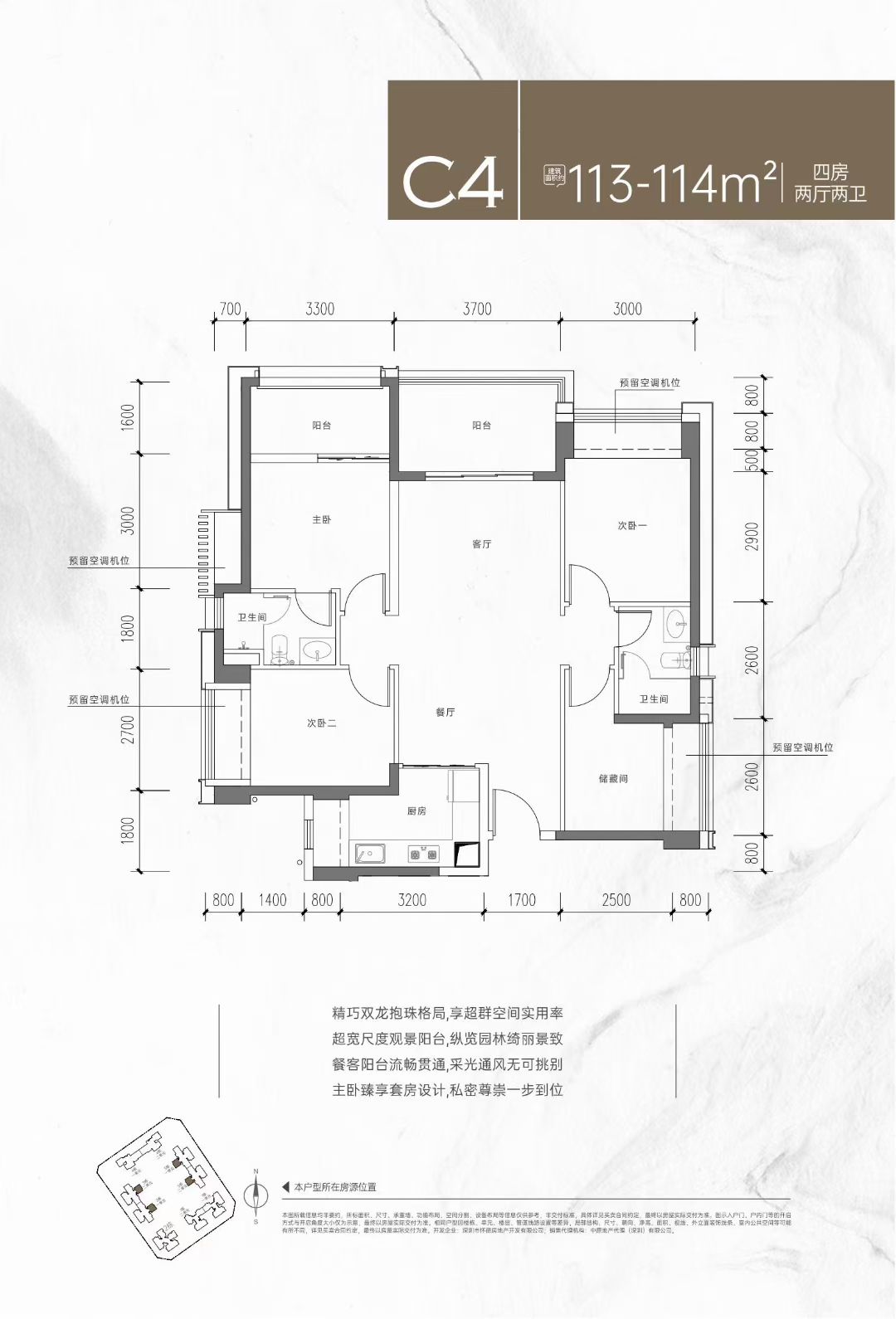
怀德城德望府113平4房2卫 预售
  • 4室2厅2卫1厨

  • 113.00㎡

  • 0.00万元/套
  • 户型方正 采光充足 明厨明卫 全明格局
售楼处咨询电话400-993-0680
扫码拨号
微信扫码打电话
省时 高效 问底价