深圳
关闭
J
江西
S
深圳
首页
新房
帮你找房
资讯
楼盘动态
购房指南
房产资讯
楼盘导购
房产宝典
房产百科
优惠活动
咨询电话:400-993-0680
您的位置:
首页
>
新房
> 金信中心
手机看房
更方便
金信中心
在售
宜居生态
售楼处电话
400-993-0680
楼盘主页
楼盘动态
在售户型
楼盘相册
楼盘信息
楼盘问答
价格走势
楼栋信息
楼盘点评
全部(
5
)
零居室(
5
)
←
0室0厅0卫0厨
在售
0.00㎡
0室0厅0卫0厨
在售
0.00㎡
0室0厅0卫0厨
在售
0.00㎡
0室0厅0卫0厨
在售
0.00㎡
0室0厅0卫0厨
在售
0.00㎡
→
户型图(
1
/
1
)
查看大图
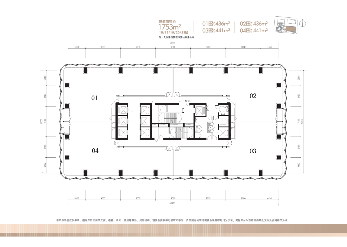
层面积:1730-1820平,每层4户:432-456平 可组合购买
在售
户 型
0室0厅0卫0厨
建筑面积
0.00㎡
参考价格
房价待定
获取最新价格变动
参考总价
0.00
万元/套
项目特色
户型解析
售楼处咨询电话
400-993-0680
扫码拨号
微信扫码打电话
省时 高效 问底价
免费通话
层面积:1730-1820平,每层4户:432-456平 可组合购买(0室0厅0卫0厨)