售楼处电话
400-993-0680
消息通知(我们将为您保密个人信息)
0室0厅 总建筑面积:2.77万㎡ 层数:13层 层高:4.5m 荷载:500KG/㎡ 标准层面积:2500㎡ 主力户型:1200㎡ 使用率:77% 大堂:9.6m双大堂设计 空调:企业自装 电梯:6客梯+1消防梯,载重1.6-2吨
-
面积:0.00㎡
朝向:
0.00万元/套
- 深圳市特区建设发展集团有限公司
- 30年
- 57000㎡
- 290000㎡
- 30%
- 1600个
- 待定户
- 12.5元/平·月
- 深圳市特建发物业管理有限公司
- 毛坯
【尚智科技园】 29万㎡智能+产城综合体
科学城门户|光明大道旁
全方位配套|总部新领地
国企开发商|户户有产权
[图片]
项目基本信息
产品业态:准甲级写字楼、研发办公、小高层工业上楼、宿舍、商业
面积:14.47万㎡
主力户型:建面250-310㎡
层高:4.2-4.5m
停车位:1600个( 481个充电桩)
产权:30年新型产业用地
交楼标准:毛坯
【物业管理费】:12.5元/平/月
产业空间业态
150M准甲级写字楼
总建筑面积:5.1万㎡
层数:33层
层高:4.2m
荷载:350KG/㎡
标准层面积:1700㎡
主力户型:280-310㎡
使用率:71%
大堂:10.6m挑高&1000㎡大堂
空调:麦克维尔中央空调
电梯:12部客梯、分高中低分区运行
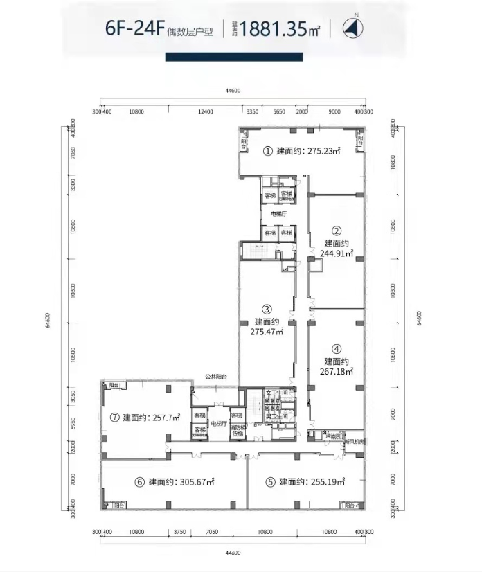
户型平面图鉴赏
灵动小高层办公
总建筑面积:4.2万㎡
层数:25层
层高:3.8m
荷载:350KG/㎡
标准层面积:1900㎡
主力户型:245-310㎡
使用率:71%
大堂:10.2m挑高,亲和商务典范
空调:VRV格力空调
电梯:7客梯+1消防/货梯,载重1600kg
总建筑面积:2.77万㎡
层数:13层
层高:4.5m
荷载:500KG/㎡
标准层面积:2500㎡
主力户型:1200㎡
使用率:77%
大堂:9.6m双大堂设计
空调:企业自装
电梯:6客梯+1消防梯,载重1.6-2吨
~360°多元配套~
商业配套:1.76万㎡商业街,将引进银行、咖啡厅、便利店、特色餐饮等多元业态
居住配套:3.89万㎡(840套)配套宿舍
交通配套:公交首末站、双地铁环绕(凤凰城站/长圳站)
市政配套:双公园景观、社康、邮亭
打造集创、科、研、产、商、居六位一体的特建发模式“产业综合体”
地点:光明区光明大道与科裕路交汇处(华星光电对面)














