售楼处电话
400-993-0680
消息通知(我们将为您保密个人信息)
- 深圳市大鹏新区特区建工产业空间发展有限公司
- 50年
- ㎡
- 210000㎡
- 30%
- 个
- 待定户
- 元/平·月
- 毛坯
大鹏新区滨海健康产业园
深圳里的花园海景独栋
约8000-15000㎡海景独栋
最小分割可售约1300㎡
项目地址:深圳市⼤鹏新区葵涌街道葵湾路与海潮路西北⻆
七大核心价值
国企护航
特区建工品质保障,红本产权可抵押贷款
稀缺独栋
深圳少有海景独栋厂房,独门独户高端形象
独家冠名
一企一栋可对外展示LOGO,彰显企业形象
高标准设计
约4.5-8m层高,约0.75-2T/㎡荷载,配备3T-5T货梯
花园露台
灵活打造商务洽谈/接待,员工休闲等场景
全能适配
满足企业生产、研发办公、试验等需求
低容积率
约3.0低容积率,依山傍海,激发创新活力
项目基础介绍
位于坝光国际生物谷(食品谷)片区
项目首期总投资约12.6亿元
占地面积约7万㎡
计容总建筑面积约21万㎡,其中高标准厂房19万㎡,研发用房1.9万㎡。
项目工程进度
项目一期企业服务中心已开放。二期处于土方外运及主体施工阶段 ,目前土石方累计开挖外运约36.5万方 。其中,7栋楼处于土方外运施工阶段,2栋、8栋、9栋楼处于主体施工阶段。项目计划2025年建成交付。
多元户型介绍
3/4/5/8栋生产制造厂房
(其中3/4/8为独栋厂房)
8栋4层平面图 (整层面积约2200㎡)
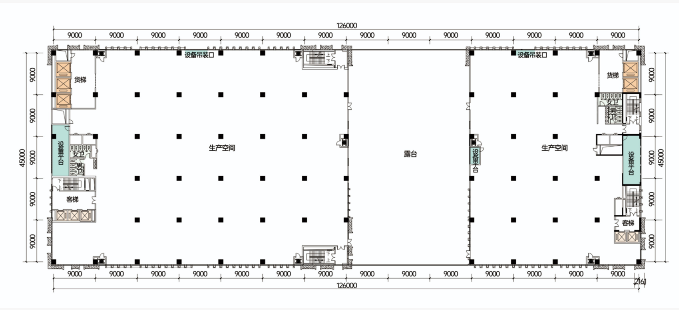
大独栋丨8栋整栋建筑面积约10530㎡;3/4栋整栋建筑面积约14024㎡,5栋整栋建筑面积约44983㎡;
高层高丨首层约8m层高,2-4层约6m层高,5层及以上约4.5m层高;
重荷载丨首层约2T/㎡荷载,2-4层约1T/㎡荷载,5层及以上约0.75T/㎡荷载;
宽柱距丨约8*9m柱间距,生产线排布及大型设备摆放更灵活;
高效率丨2部3T货梯1部1.5T客梯,配置独立装卸平台,助企业提质增效;
多露台 | 配备花园露台,满足商务交流、员工休闲等多元场景。
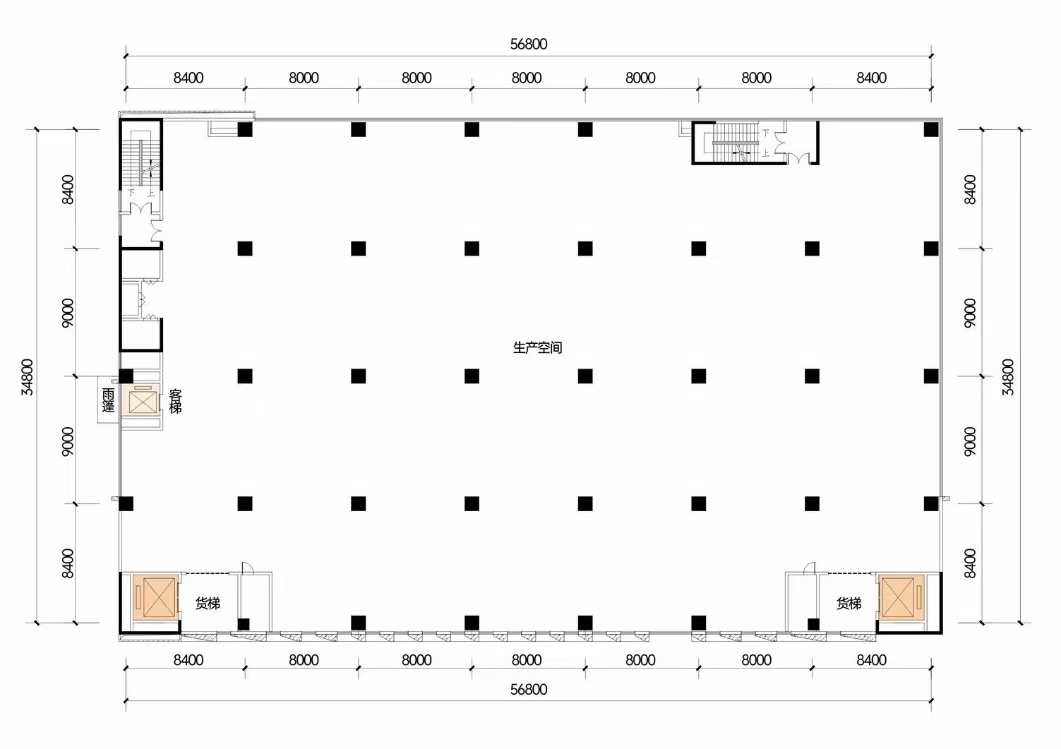
6栋/7栋智能制造厂房
优面积丨建面约1400—6200㎡,可分可合,灵活组合;
高层高丨首层约6m层高,2-3层约5.4m层高,4层及以上约4.5m层高;
重荷载丨首层约1.2T/㎡荷载,2-3层约0.8T/㎡荷载,4层及以上约0.65T/㎡荷载;
宽柱距丨约9*9m柱间距,空间开阔大气,满足排布超长生产线;
多电梯丨5部3T货梯,5部1.5T客梯,人货分区,提高进出效率;
装卸快丨首层配置独立装卸平台及装卸车位,助企业提质增效。
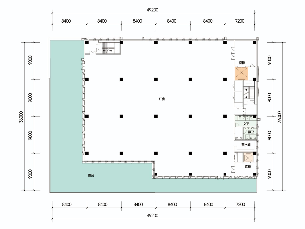
2栋/9栋独栋研发办公
[图片]
2栋标准层平面图(建面约1300-1900㎡)
优面积丨2栋整栋建筑面积约 8460㎡,9栋整栋建筑面积约8446㎡,匹配总部企业雄心;
高层高丨首层约6m层高,2-5层约4.2m层高,适配企业研发办公总部;
重荷载丨首层约0.8T/㎡荷载,2-3层约0.65T/㎡荷载,4层及以上约0.5T/㎡荷载;
宽柱距丨约8.4*9m柱距,高实用设计,便于设备摆放与生产;
优空间丨独立大堂高端形象;实用空间,满足办公生产研发等多元需求
区域介绍:资源聚集 经济强区
【产业集群,赋能企业】
【龙头企业,激发活力】
【大美坝光 产业先行】
立体交通 全时高效
全维配套 满足企业及员工日常需求
政府主导 国企实施 品质保障
1⃣ 【特区建工 深圳市国有独资大型建工产业集团】
特区建工集团是深圳市国资委为深化区域性国资国企综合改革,推动深圳建筑业高质量发展,于2019年12月底成立的深圳市国有独资大型建工产业集团。公司主业包括工程建设、“工业上楼”、城市服务、综合开发。
公司正加快打造世界一流城市建设全过程综合服务商。














