售楼处电话
400-993-0680
消息通知(我们将为您保密个人信息)
- 深业集团(深圳本土国企) 旗下深圳市深业龙兴地产有限公司
- 70年
- 21900㎡
- 107000㎡
- 40%
- 3.1
- 650个
- 569 户(北地块首推)户
- 5.5元/平·月
- 深业物业
- 精装
深业上宸瑞府|龙华上塘纯商品房 89㎡490 万起 近地铁 Costco



基础信息
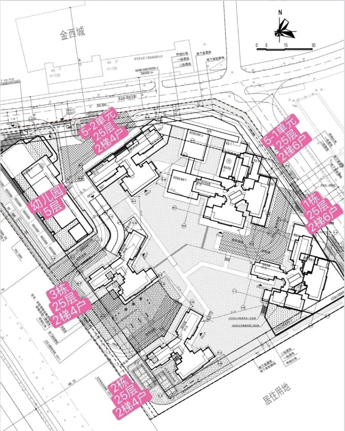
楼盘名称:深业上宸瑞府(备案名:上宸瑞府)
别名:上宸瑞府、深业上宸、A815-0036 宗地
产品类型:70 年产权纯商品住宅(无回迁 / 安居房),新国标户型,高得房率
开发商品牌:深业集团(深圳本土国企) 旗下深圳市深业龙兴地产有限公司
物业公司:深业物业(深业集团旗下)
物业费:待定(参考片区同品质项目,预计 4.5-5.5 元 /㎡/ 月)
开盘时间:预计 2026 年 7月取证并开盘(首推北地块 569 套)
交房时间:预计 2028 年中旬,精装交付
总户数:569 户(北地块),整体项目 1047 户
车位配比:约1:1.15
位置与经纬度
详细地址:深圳市龙华区民治街道与大浪街道交汇处,福龙路、简上路、洁玉街围合区域
经纬度:东经 114.02°,北纬 22.62°(项目核心区位)

交通配套
地铁
4 号线上塘站:步行约600-800 米(10 分钟内可达),直达福田口岸,两站到深圳北站
公交站
简上村站、福龙路简上路站、洁玉街站等(1 公里内约 5 个站点),覆盖 M222、M301、M462 等线路
自驾
紧邻福龙路(免费快速路),快速接入南坪快速、沈海高速,通达福田、南山、前海等核心区

周边配套
教育(3km 内)
自带:1 所9 班制幼儿园(北地块)
小学:华东师大附属深圳龙华教育集团未来小学(约 580 米)、华东师大附属深圳龙华学校(电脑派位)
初中:龙华实验学校初中部(单片区 A1 类,约 1.3 公里)、和平中学、红山中学
商业(3km 内)
社区配套:约1400㎡裙房商业+500㎡底商(便利店、餐饮等)
大型商业:ATMOLL 上塘荟(约 8 万㎡,步行 10 分钟)、华南首家Costco(约 750 米)、红山 6979、红山天虹、壹方天地
生态文体
简上社区公园、羊台山森林公园(车行约 1.5 公里)、简上体育综合体

详情描述
深业上宸瑞府是深业集团在龙华上塘板块打造的纯商品住宅项目,位于上塘 — 红山核心居住带,紧邻福田中心区。项目占地约 2.19 万㎡,总建面约 10.67 万㎡,容积率仅 3.1,绿化率 40.01%,由 5 栋 24-25 层住宅围合而成,楼间距开阔,居住舒适度高。主打新国标高得房率户型,89㎡三房、92㎡四房等产品适配刚需与改善群体,全屋精装交付。项目近地铁 4 号线上塘站,交通便捷;教育、商业、医疗配套成熟,是龙华核心区稀缺的低密纯商品房,适合自住与长期持有。
热门信息:龙华上塘纯商品房、容积率仅 3.1低密社区、92㎡做四房高得房率、近地铁 4 号线上塘站、央企国企开发品质稳
- 猜你喜欢
- 为您推荐
-
万科·龙园大观新著 均价:房价待定 -
拾悦城二期楠园 均价:45600元/㎡
-
华润前海大厦B座写字楼 均价:87000元/㎡
-
锦绣时代广场 均价:房价待定
-
金众云山海公馆 均价:房价待定













