售楼处电话
400-993-0680
消息通知(我们将为您保密个人信息)
- 30(2017-2047)年
- 14000㎡
- 217000㎡
- %
- 640个
- 户
- 元/平·月
- 仲量联行
- 毛坯
深圳--后海总部地标
独栋企业会馆,稀缺寥若晨星
大家财险总部大厦

雄踞后海金融总部基地
城市商务核心板块,汇聚行业塔尖企业
无缝接驳11号线&13号线后海站
深圳湾万象城旁,商务配套齐全
临深圳湾口岸,享一线深圳湾景观
片区稀缺在售小独栋资产
价值亮点
【核心区域】 • 项目位于“后海金融总部基地”,规划为深圳超级总部聚集区、全市第三金融商务区和国际物流总部中心。• 区域内聚集华润、阿里联想、腾讯等行业塔尖企业,形成国内领先的行业金字塔商务群。

【便捷交通】 • 地铁上盖物业,无缝接驳11号线&13号线后海站,便捷通达全城。• “三横四纵”路面交通网络,临近城市主干道滨海大道、 后海大道, 交通便捷。

【成熟配套】 • 临近深圳地标商业深圳湾万象城,周边汇集海岸城、 保利文化广场、等大型商业体,商业氛围浓厚。• 周边配套安达仕、中洲万豪、木棉花等多家顶级酒店,商务配套齐全。

【优质资产】 • 后海核心地段,一线深圳湾景观,地标建筑之一。• 片区稀缺在售小独栋资产,企业会馆业态。• 深圳顶级豪宅板块,高净值人群密集,资产增值潜力较大。

在售项目信息
C-11 办公楼
C-11楼座,行业龙头专属办公区,建筑形体为直筒椭圆形塔楼,立面形式与C-12总部大厦的立面璀璨呼应;C-11建筑楼高约99.6米,共19层,办公建筑面积约2.53万㎡,商业建筑面积约1.1万㎡,为商务企业首选的机遇平台。



销售报价
06地块小独栋统一报价15.8万/㎡
办公均价7.5万/㎡
商业均价8.5万/㎡
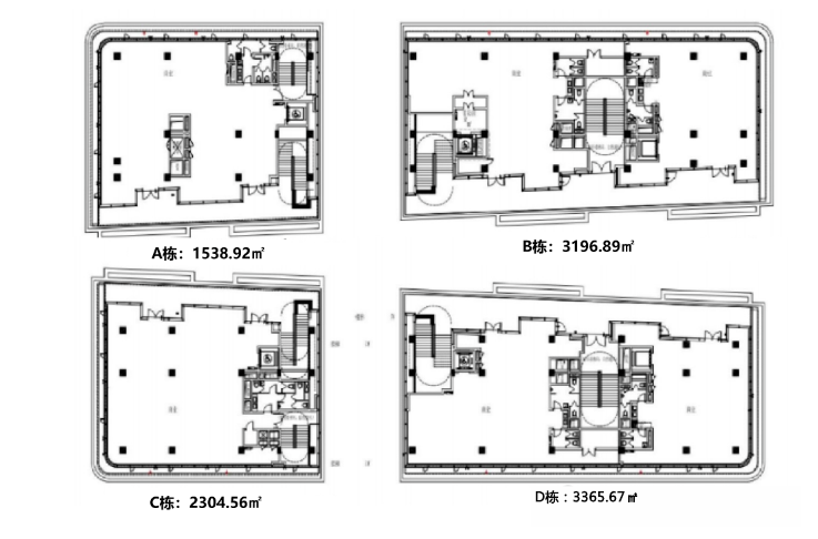
D-06企业商墅
D-06楼座,包含4栋单体企业会馆,建筑总高度19.3米,每栋企业商墅各4层,地上总建筑面积约8632㎡,沿用C12,C11写字楼项目立面材料,三个项目交相辉映;打造多元化、全业态的时尚消费场景,使得周边人群在商务办公之余,享受健康与艺术的生活休憩。




销售报价
A栋:2.43亿
B栋:4.05亿
C栋:销控
D栋:4.13亿
———————————————
【实拍图】
C-11栋

A栋

B栋

C栋

D栋















