售楼处电话
400-993-0680
消息通知(我们将为您保密个人信息)
- 深圳市旭生发展有限公司
- 50年
- 64000㎡
- 240000㎡
- 30%
- 0
- 686个
- 350户
- 写字楼:10元元/平·月
- 深圳市旭生发展有限公司
- 毛坯
【旭生·融和谷】
M1红本独栋厂房 24万㎡产城全能空间
项目基础信息
整个项目占地6.4万平米,总建筑面积约24万平米,分2期开发,本项目二期占地48000㎡,总建筑面积14万㎡,是集智能制造、光机电一体化、写字办公、人才公寓、商业配套等于一体的综合性园区。主要由1栋高层写字楼、11栋独栋办公楼(可冠名)、2栋人才公寓及底层商业组成。
项目名称:旭生·融和谷(二期)
建筑面积:14万㎡
占地面积:4.8万㎡
开发商:深圳市粤新钢投资集团有限责任公司
物业公司:深圳市旭焕晖物业管理有限公司
产权年限:50年(2007-2057)
管理费:6元/㎡
停车位:934个
停车费月卡:250元/月
交楼时间:现楼
水:7元/方,电:1.3元/度
————————————
项目简介
旭生融和谷(宝安科技桃花源松岗分园),由深圳市粤新钢投资集团有限公司按照国家级科技企业孵化器标准,斥巨资建造并运营的科技企业孵化器项目。企业孵化区建筑面积约23.77万㎡,截止目前,园区入驻率80%,主要企业类型以光机电一体化、智能制造、生物医疗为主,其中国高企业21家,规上企业7家。
————————————
粤港澳湾区核心枢纽+大空港一级辐射区+光明科学城一级辐射区
深圳西部门户新城,深圳西部发展轴核心,拥有市区确立的产业升级和城市更新双试点,打造高端产业基地高新园区,位处粤港澳城市群中心,广深港科技创新走廊中轴,享粤港澳1小时生活圈。
————————————
旧改林立 抢占资产先机
超23个旧改项目更新,更新面积超500万平方米,仅潭头社区城市更新项目由华润地产牵头执行,规划用地即超过400万平方米,将吸纳20万商务人群。集聚华润地产、卓越地产、京基地产、华晖集团等开发商大体量综合体旧改,抢占松岗西北门户财富先机,享受深圳西部高地发展红利!
————————————
海陆空轨立体四维交通
集海陆空轨四维立体交通。毗邻外环高速与广深高速双出入口,接驳福永码头、机荷高速。地铁11号线后亭站与6号线松岗站快速链接宝安机场、南山、福田、龙华;18/20/26/30号地铁全速规划中,帷幄深城际铁路,1小时候经济圈速达全城。
————————————
多维配套 享一站式精彩生活
3公里范围内有华润万家、天虹商场和沃尔玛购物广场,还有松岗最大的商业广场东方park,当然还有目前市场上关注度最高的万丰海岸城,开车只需10分钟车程,就可以满足您的吃喝玩乐样样,更带来巨大的涨幅空间与生活空间。
————————————
项目交通
项目位于松岗大道与芙蓉路交汇处,毗邻广深与外环高速双高速口,占据松岗、沙井、光明三区汇聚的核心位置,是现在深圳最火的片区之一。
项目交通便利,轨道交通方面:乘坐深圳快线11号地铁线,从后亭站出发,约20分钟抵达机场,6号线地铁线从松岗站出发可到达光明、石岩、松岗、龙华、福田等区域连接全市;
生态独栋 殿堂级办公领地
5.8米层高的生态独栋,阔绰有度的全景观视野;
企业生态总部亦或是智慧全能空间。
独栋产品信息
产品类型:生产研发型厂房
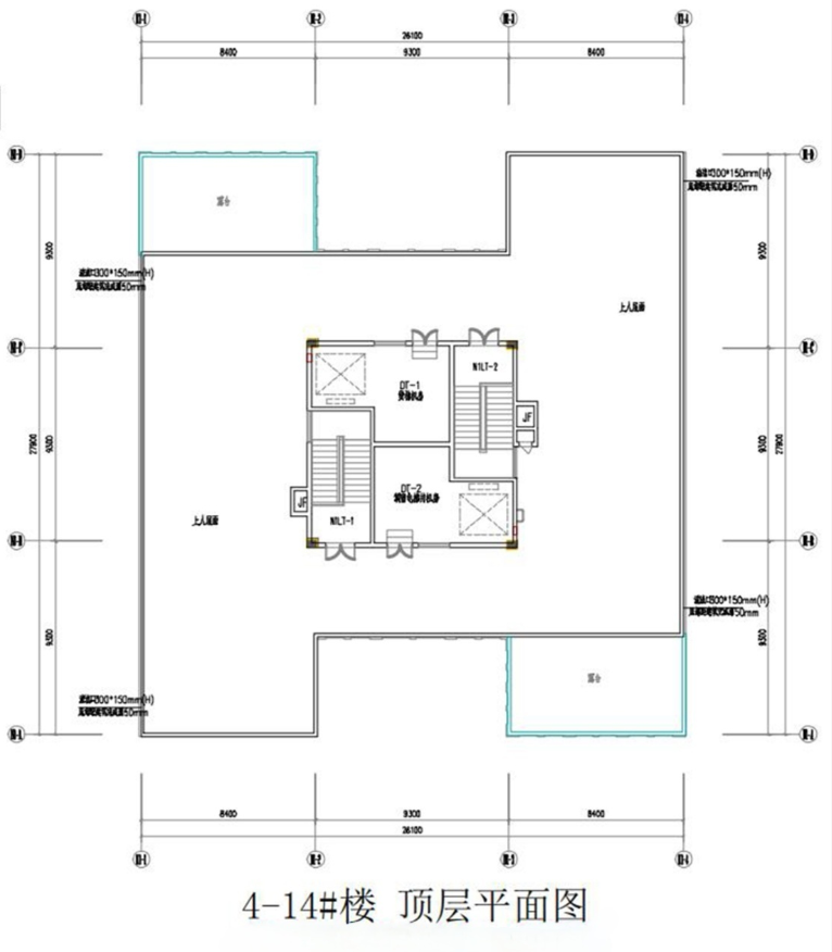
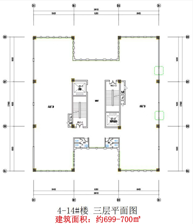
产品栋数:一共11栋(4-14栋),一栋4层
标准层面积:标准层面积约600-700平/层
层高:1楼层高约5.8米,2-4楼层高约4米
承重:1楼500kg,2-4楼400kg
电梯:1部/栋,日立1.6kg,开口1.2*2.4米,轿厢1.6*1.8*3米(预留有电梯井)














