售楼处电话
400-993-0680
消息通知(我们将为您保密个人信息)
- 深圳市特区建工集团有限公司
- 30年
- 41400㎡
- 248100㎡
- 30%
- 6
- 个
- 待定户
- 3.6元/平·月
- 毛坯
盐田先进技术产业园
深圳国企红本高标厂房/封面研办 可租可售
盐田中心、港口旁 约24万㎡山海产城
单层可售约1500㎡-5100㎡ 高标厂房
建面约500-1800㎡总部研发办公
项目地址:盐田区深盐路1001号
六大核心价值
国企护航
特区建工品质保障,红本产权可抵押贷款
高标准设计
约4.5—8m层高,约0.65—2T/㎡荷载,约9*9宽柱距
多维交通
四地铁口两高速一港口,为入驻企业提供货运物流和通勤保障
企业封面
盐田CBD旁,惠深沿海高速头排,昭示面优越,突显企业形象
全维配套
约2KM范围内,星级酒店、繁华商业、公园休闲一应俱全
全能适配
高标准厂房/独栋厂房/研发办公,满足企业生产、研发办公、实验等需求
项目基础介绍
位于盐田-大鹏东部滨海先进制造业园区之盐田临港产业带园区启动区
项目总占地面积约4.14万㎡,计容建筑面积约24.81万㎡
约18.4万㎡高标准厂房、3.8万㎡研发用房和2万㎡配套宿舍
多元户型介绍
【2/3栋独栋厂房】
[图片]
标准层建面约1500-1900㎡
整栋约1.3万㎡
高层高 | 首层约8m,2层及以上约6m;
宽柱距 | 约9*10m间距,方正空间,高使用率;
重荷载 | 首层荷载约2T/㎡,2-4层荷载约800kg/㎡;
卸货快 | 首层配置装卸平台,助企业提质增效;
多电梯 | 每栋2部货梯、1部客梯,进出高效率;
多露台 | 部分单元配备花园露台,洽谈休闲皆宜;
优承载 | 3栋厂房一楼为实心地面,更优承载力。
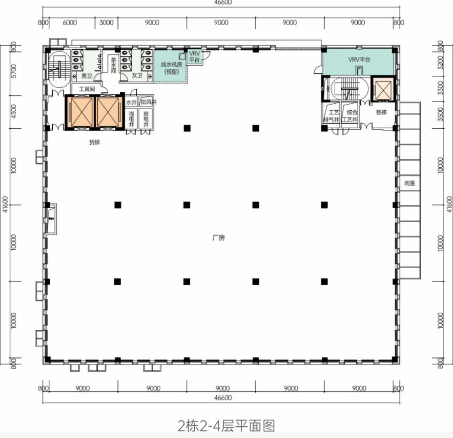
【4/5/6栋高标准厂房】
[图片]
标准层建面约2800—5100㎡
高层高 | 首层约8m层⾼,2-4层约6m层高;
宽柱距 | 约9*9m间距,方正空间,高使用率;
重荷载 | 首层荷载约2T/㎡,2-4层荷载约800kg/㎡;
卸货快 | 独立装卸平台及车位,助企业提质增效;
优承载 | 4栋1单元⼀楼实心地面,更优承载力,隔振效果佳;
多露台 | 部分单元配备花园露台,洽谈休闲皆宜。
【7栋研发办公】
[图片]
标准层建面约500—1800㎡
高层高 | 首层大堂约6m,2-23层约4.2m;
重荷载 | 首层约0.65T/㎡,2层以上约0.30T/㎡;
优空调 | 预留VRV空调安装条件,降低成本;
多电梯 | 奢配7部客梯,1部货梯,尊崇出行;
多露台 | 部分单元配备花园露台,洽谈休闲皆宜。
区域介绍:山海都市 产业蝶变
【盐田——经济发展 量质齐升】
【盐田——产业兴盐 创新驱动】
政策扶持:全方位惠企,助企发展
立体交通 全时高效
全维配套 满足企业及员工日常需求
政府主导 国企实施 品质保障
【特区建工 深圳市国有独资大型建工产业集团】
特区建工集团是深圳市国资委为深化区域性国资国企综合改革,推动深圳建筑业高质量发展,于2019年12月底成立的深圳市国有独资大型建工产业集团。公司主业包括工程建设、“工业上楼”、城市服务、综合开发。
公司正加快打造世界一流城市建设全过程综合服务商。














